Renoverad ljus och trivsam kontorslokal
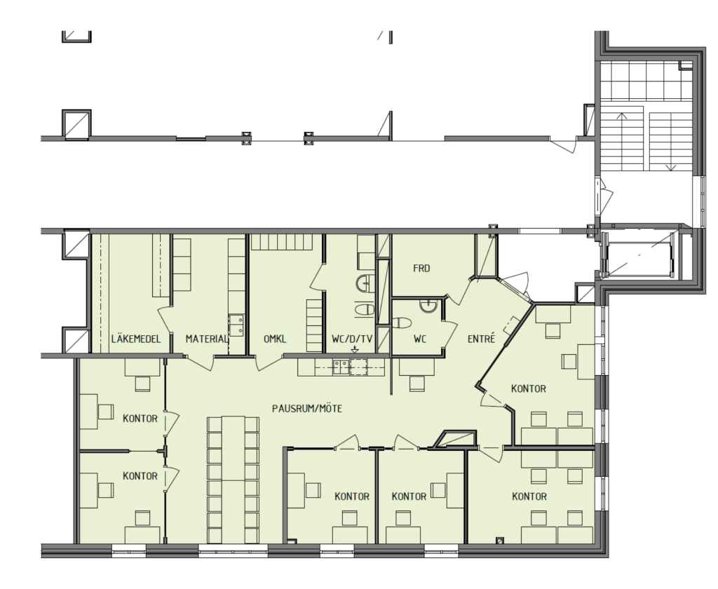
Lokalen renoverades år 2017, är ljus och trivsam. Med en yta på 177 kvm och flera rum passar denna lokal perfekt både som företagslokal med flera kontorsrum, vårdmottagning med mottagningsrum, hälsostation eller co-working space.
Lokalen ligger på plan 3, hiss finns i huset. Hyra enligt överenskommelse, tillträde snarast eller enligt överenskommelse.





