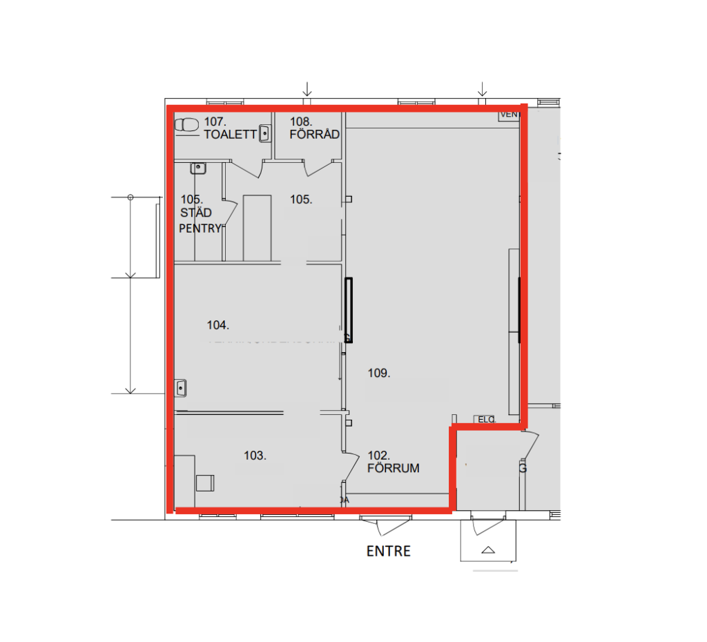
Lokal på 120 kvm
Här finns utrymme för 16 arbetsplatser. Lokalen har ett pentry med diskho, ett litet kylskåp och micro samt utslagsvask.
Tillträde enligt överenskommelse.
Hyra enlig överenskommelse.
Lokalen hyrs ut omöblerad.





Translate using Google Translate. Campus Roslagen is not responsible for the accuracy of the translation.